+86 15603181870
amy@chnhose.com
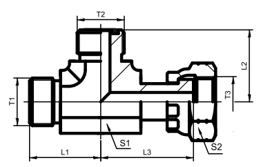
ORFS мужское о-образное кольцо / ORFS женская беговая тройка
| PART NO. | THREAD | DIMENSIONS | WEIGHT | WORKING PRESSURE | |||||||
| T1 | T2 | T3 | L1 | L2 | L3 | S1 | S2 | g | |||
| CF-04 CF-06 CF-08 CF-10 CF-12 CF-16 CF-20 CF-24 |
9/16″X18 11/16″X18 13/16″X18 1″X14 1.3/16″X12 1.7/16″X12 1.11/16″X12 2″X12 |
9/16″X18 11/16″X18 13/16″X18 1″X14 1.3/16″X12 1.7/16″X12 1.11/16″X12 2″X12 |
9/16″X18 11/16″X18 13/16″x18 1″X14 1.3/16″X12 1.7/16″X12 1.11/16″ X12 2″x12 |
21.5 25 28 33.5 37.5 41.5 44.5 49 |
21.5 25 28 33.5 37.5 41.5 44.5 49 |
26.5 29 38 41 46.5 53.5 58 61 |
14 19 19 27 30 36 41 50 |
19 22 27 30 36 41 50 60 |
80 130 195 333 513 785 1052 1525 |
63 63 63 40 40 40 25 25 |
|